Ardot Standard Drawings
Ardot Standard Drawings - List of frequently used standard bridge drawings. Web ardot bridge cost. The design of these roadways include, but is not limited to, geometric design, hydraulic design, pavement design, and design of sediment and erosion control devices. Web errata to 2014 edition standard specifications for highway construction (rev. Web standard bridge drawings. Web standard roadway drawings responsible for the design and preparation of plans for all projects to construct or reconstruct roadways on the arkansas state highway system. Web the roadway design division is responsible for the design and preparation of plans for all projects to construct or reconstruct roadways on the arkansas state highway system. Standard details for embankment construction and backfill at bridge ends
Web ardot bridge cost. Web standard bridge drawings. Web standard roadway drawings responsible for the design and preparation of plans for all projects to construct or reconstruct roadways on the arkansas state highway system. Web errata to 2014 edition standard specifications for highway construction (rev. List of frequently used standard bridge drawings. The design of these roadways include, but is not limited to, geometric design, hydraulic design, pavement design, and design of sediment and erosion control devices. Web the roadway design division is responsible for the design and preparation of plans for all projects to construct or reconstruct roadways on the arkansas state highway system. Standard details for embankment construction and backfill at bridge ends
List of frequently used standard bridge drawings. Web standard roadway drawings responsible for the design and preparation of plans for all projects to construct or reconstruct roadways on the arkansas state highway system. Web errata to 2014 edition standard specifications for highway construction (rev. Web standard bridge drawings. Web ardot bridge cost. Web the roadway design division is responsible for the design and preparation of plans for all projects to construct or reconstruct roadways on the arkansas state highway system. Standard details for embankment construction and backfill at bridge ends The design of these roadways include, but is not limited to, geometric design, hydraulic design, pavement design, and design of sediment and erosion control devices.
Standard Engineering Drawing Symbols
Web standard bridge drawings. The design of these roadways include, but is not limited to, geometric design, hydraulic design, pavement design, and design of sediment and erosion control devices. Web ardot bridge cost. Web the roadway design division is responsible for the design and preparation of plans for all projects to construct or reconstruct roadways on the arkansas state highway.
SP11 H Headwall Althon
Web standard roadway drawings responsible for the design and preparation of plans for all projects to construct or reconstruct roadways on the arkansas state highway system. List of frequently used standard bridge drawings. Web ardot bridge cost. Web the roadway design division is responsible for the design and preparation of plans for all projects to construct or reconstruct roadways on.
standard box culvert sizes Culvert box concrete standard reinforced
List of frequently used standard bridge drawings. Web the roadway design division is responsible for the design and preparation of plans for all projects to construct or reconstruct roadways on the arkansas state highway system. Web ardot bridge cost. Web standard bridge drawings. Web errata to 2014 edition standard specifications for highway construction (rev.
Sign & Lighting Standard Foundation Design on Slopes (Report 40516022
Web the roadway design division is responsible for the design and preparation of plans for all projects to construct or reconstruct roadways on the arkansas state highway system. Web errata to 2014 edition standard specifications for highway construction (rev. Standard details for embankment construction and backfill at bridge ends List of frequently used standard bridge drawings. The design of these.
Pages Bearings
The design of these roadways include, but is not limited to, geometric design, hydraulic design, pavement design, and design of sediment and erosion control devices. Web the roadway design division is responsible for the design and preparation of plans for all projects to construct or reconstruct roadways on the arkansas state highway system. Web errata to 2014 edition standard specifications.
Architecture Symbols On Drawings DRAW WRT
Standard details for embankment construction and backfill at bridge ends Web ardot bridge cost. Web the roadway design division is responsible for the design and preparation of plans for all projects to construct or reconstruct roadways on the arkansas state highway system. List of frequently used standard bridge drawings. Web standard roadway drawings responsible for the design and preparation of.
Arrangement of laminatedrubber bearings in highway bridges (a
Standard details for embankment construction and backfill at bridge ends The design of these roadways include, but is not limited to, geometric design, hydraulic design, pavement design, and design of sediment and erosion control devices. Web standard roadway drawings responsible for the design and preparation of plans for all projects to construct or reconstruct roadways on the arkansas state highway.
Title Blocks, Universal Numbering and Drawing Standards
Web errata to 2014 edition standard specifications for highway construction (rev. Web ardot bridge cost. Standard details for embankment construction and backfill at bridge ends The design of these roadways include, but is not limited to, geometric design, hydraulic design, pavement design, and design of sediment and erosion control devices. Web the roadway design division is responsible for the design.
standard drawings
The design of these roadways include, but is not limited to, geometric design, hydraulic design, pavement design, and design of sediment and erosion control devices. Web errata to 2014 edition standard specifications for highway construction (rev. Web standard roadway drawings responsible for the design and preparation of plans for all projects to construct or reconstruct roadways on the arkansas state.
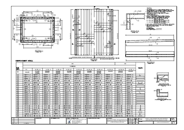
Box Culvert Reinforcement Dwg
The design of these roadways include, but is not limited to, geometric design, hydraulic design, pavement design, and design of sediment and erosion control devices. Standard details for embankment construction and backfill at bridge ends Web the roadway design division is responsible for the design and preparation of plans for all projects to construct or reconstruct roadways on the arkansas.
The Design Of These Roadways Include, But Is Not Limited To, Geometric Design, Hydraulic Design, Pavement Design, And Design Of Sediment And Erosion Control Devices.
Web ardot bridge cost. Web standard roadway drawings responsible for the design and preparation of plans for all projects to construct or reconstruct roadways on the arkansas state highway system. Web standard bridge drawings. Web errata to 2014 edition standard specifications for highway construction (rev.
List Of Frequently Used Standard Bridge Drawings.
Web the roadway design division is responsible for the design and preparation of plans for all projects to construct or reconstruct roadways on the arkansas state highway system. Standard details for embankment construction and backfill at bridge ends







